
文/乐居新媒体 徐迪万博全站APP最新版
2024首场土拍出让的房山区拱辰地块终于有新动向了。
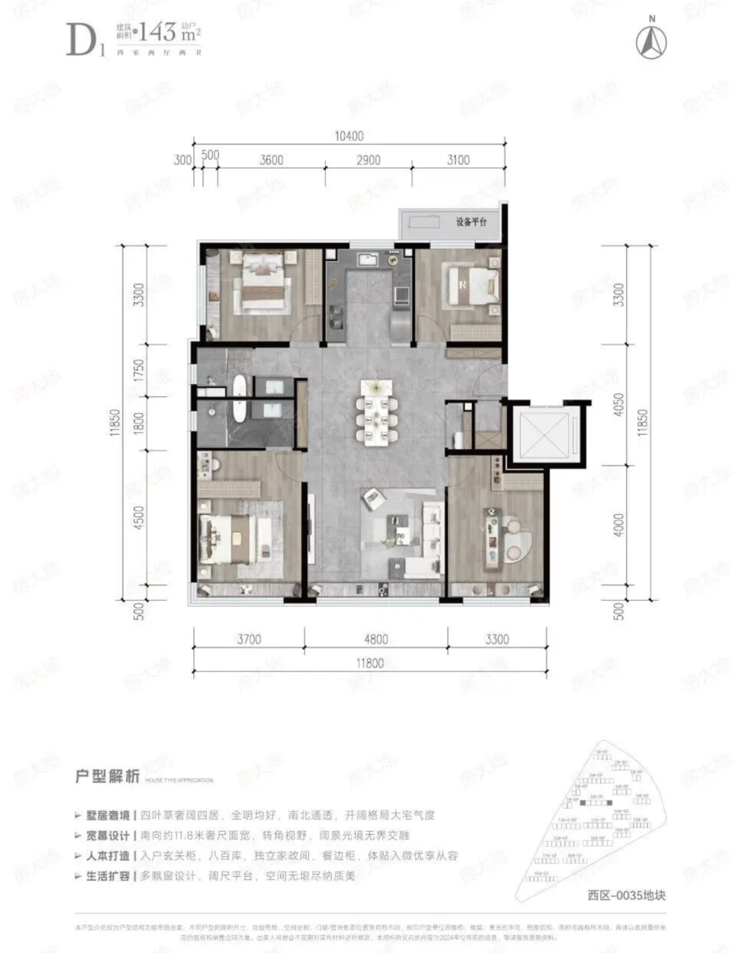
近日,拿地近1年的房山新盘颐知筑负责发布其全套户型图,涵盖面积段为92至143㎡的洋房居品。











在各大新盘狂卷居品确当下,颐知筑酝酿一年,却拿出一套堪称“中规中矩”的居品,莫得阳台,飘窗标准也略显短促。
以主力102㎡户型图为例,面宽9.5米,进深10.2米,三室两卫,风物梗直,南北通透。客餐厨一体,南向三开间,飘窗援手面积4.75㎡;北向无飘窗,有一个不到3㎡开发平台。

1月4日,北京城建22.8亿元的底价摘得房山区拱辰街说念FS00-0110-0018、0028、0035地块,楼面价1.7万元/㎡,销售交流价4.5万元㎡。
之后一直到9月份才公示想象决策,表情案名定为“颐知筑”。从拿地到出图,周期长达8个月,颐知筑也算是创造了北京楼市记录。
表情建筑领域13.82万畴昔米,共2个住宅地块及1个幼儿园地块,拟成立34栋5-8F洋房,1206套房源。
其中,东区0028地块容积率1.6,有策画15栋6-8F洋房,共572户;
西区0035地块容积率1.5,有策画19栋5-8层洋房,共634户;
0018地块为幼儿园,地块出让文献上这块地在表情东北角,而在表情想象决策上,幼儿园被放到了东南角。这个诊治更成心于楼栋排布,同期幼儿园在位置上与住区之间也愈加零丁,互不搅扰。
此外,表情东边设立了社区详尽工作标准,西北部有策画有一块生意金服用地。

颐知筑表情位于房山拱辰街说念,梅花庄板块,西侧紧邻良乡火车站,南侧400米处是皆门师范大学房山分校竹园街校区,这是一所涵盖小学至高中的12年一贯制学校。
邻近主要在售新盘为房山国贤府、京熙润府、和知筑。
中建房山国贤府有策画成立12栋住宅楼共692套房源,2023年3月和8月两批次拿证,主力面积段分袂为86-105㎡三居和127-166㎡三居,现在认为网签582套,去化率84%,成交均价4.25万元/㎡;
京熙润府堪称“房山三冠王”,本年3月8日取证入市,由华润置地操盘,共919套住宅房源,主推80-114㎡三居,现在网签530套,去化率约58%,成交均价4.25万元/㎡;
和知筑同为北京城建打造的新盘万博全站APP最新版,本年10月20日开盘,共推出12栋576套房源,主力建面109-144㎡四居和89-105㎡三居,销售交流价4.5万/㎡。现在网签112套,去化率约21%,成交均价3.8万元/㎡。
